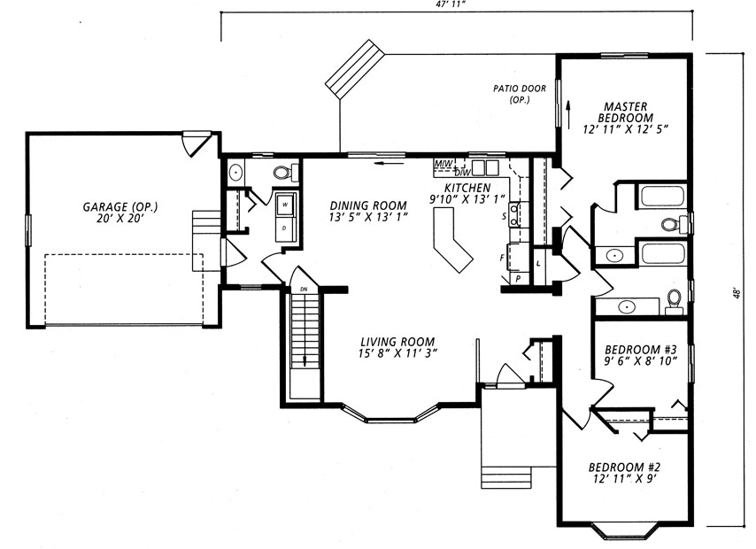
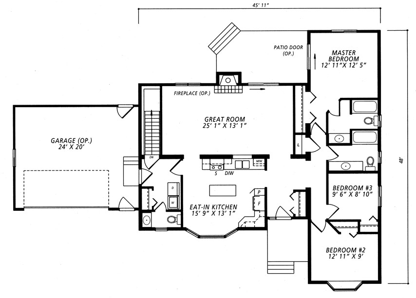
Wedgewood