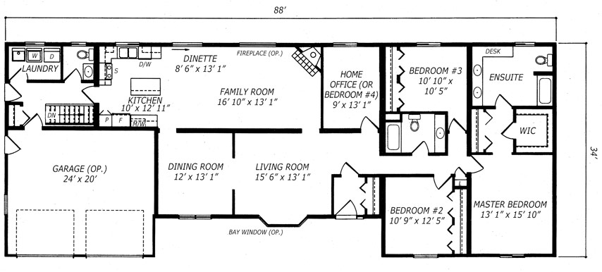
Teakwood