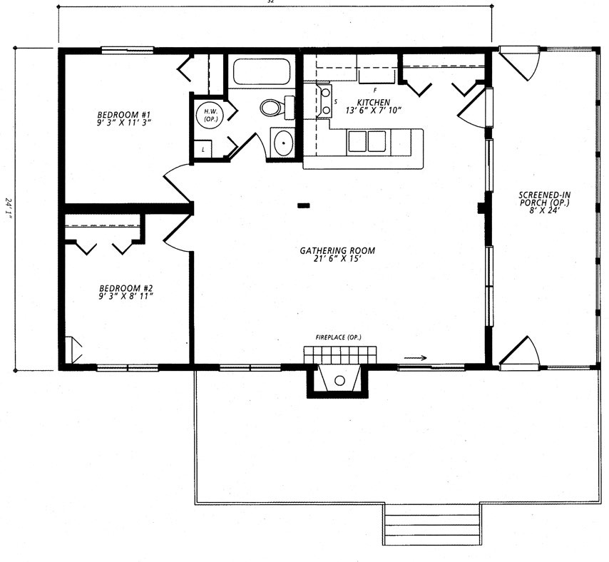
Sugar Bush