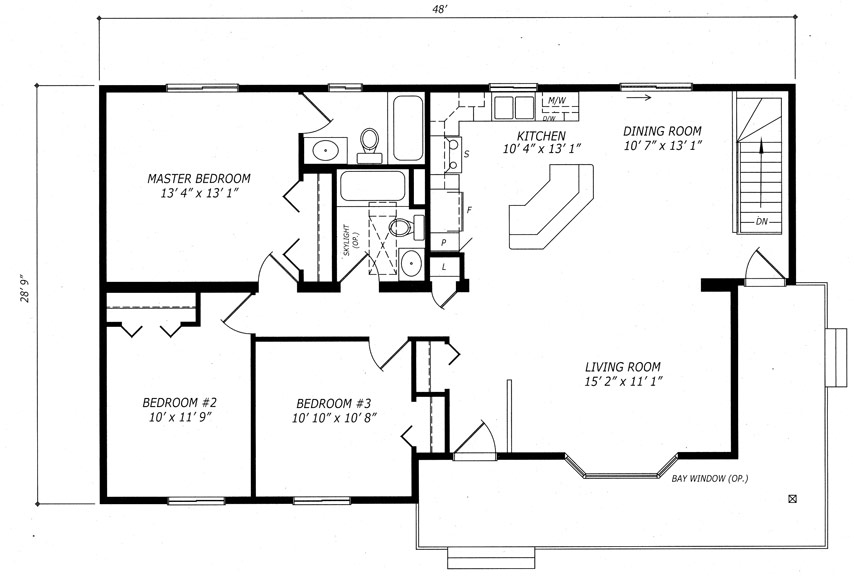
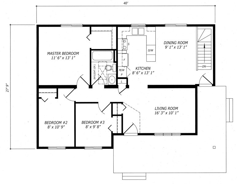
Stratford