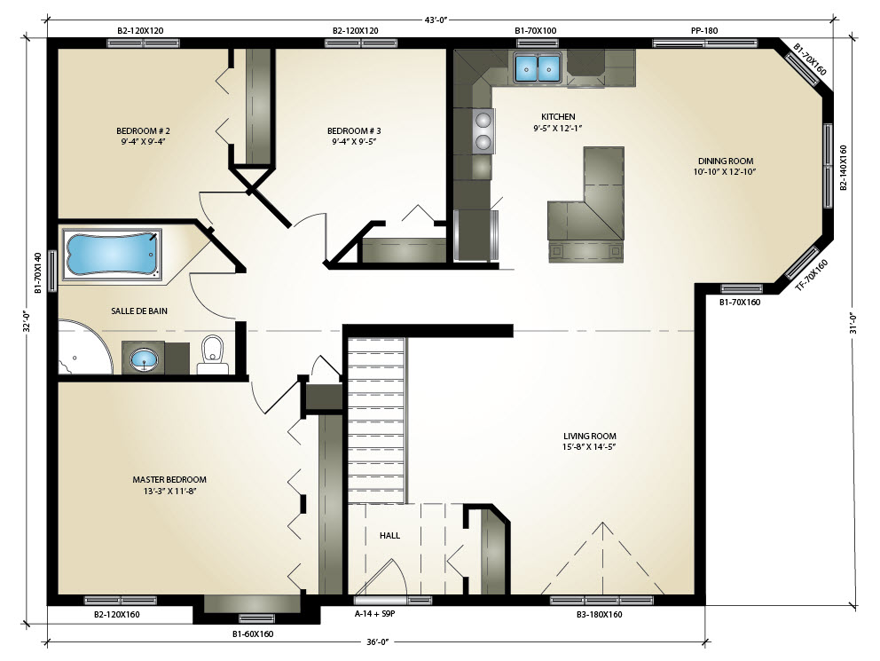
Simcoe