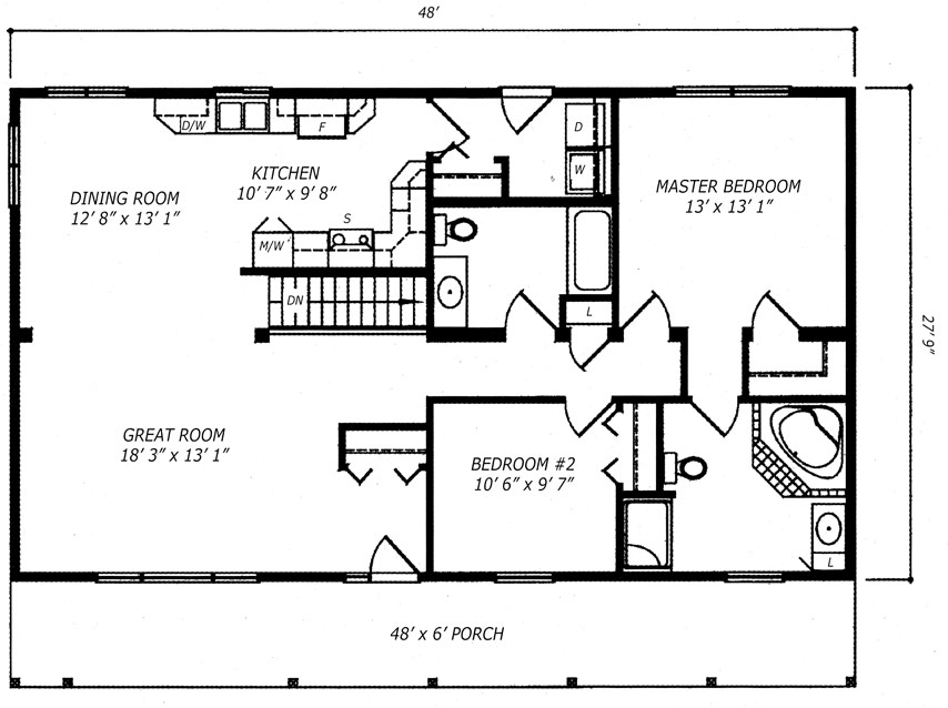
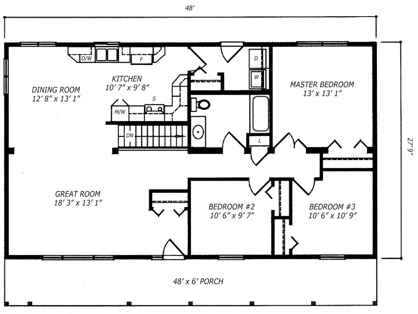
Rideau