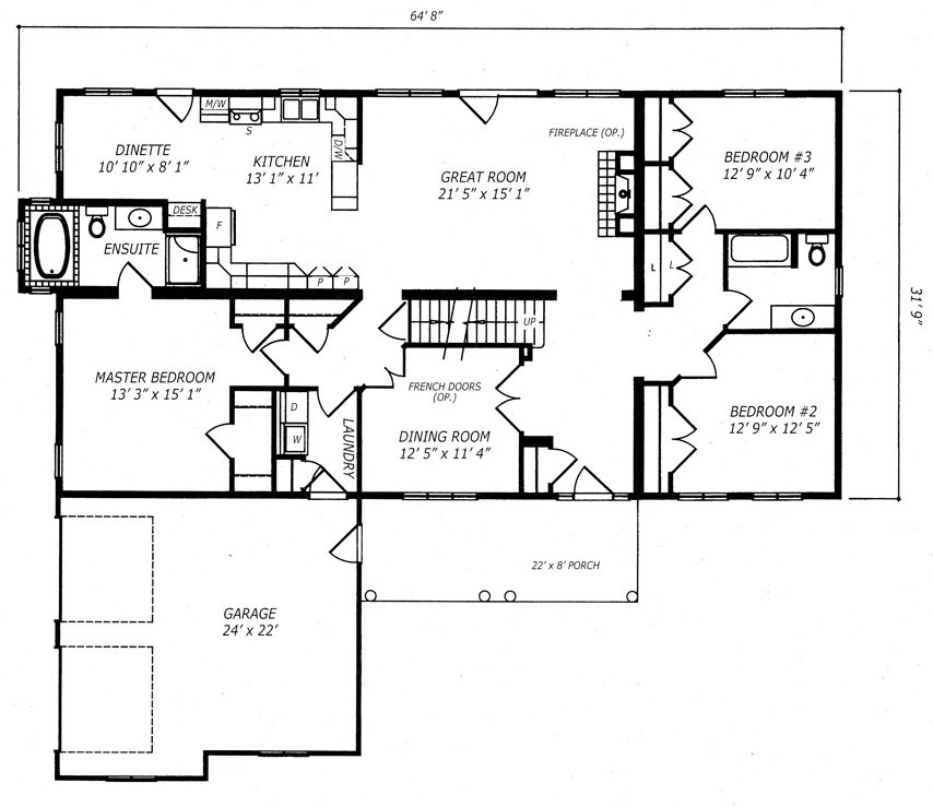
Laurentian