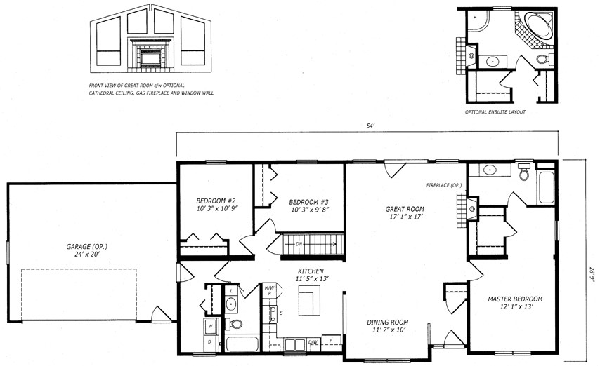
Dundas