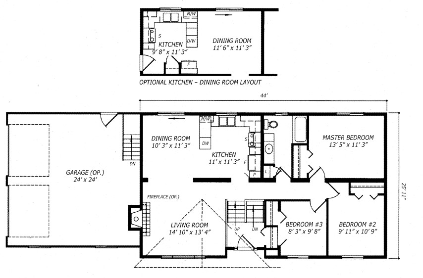
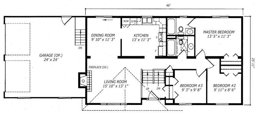
Ashwood